
$2,199,000
3,273
SQ FT
$672
SQ/FT
256 Los Gatos Boulevard
@ Wheeler Ave - 16 - Los Gatos/Monte Sereno, Los Gatos
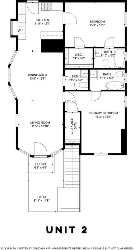
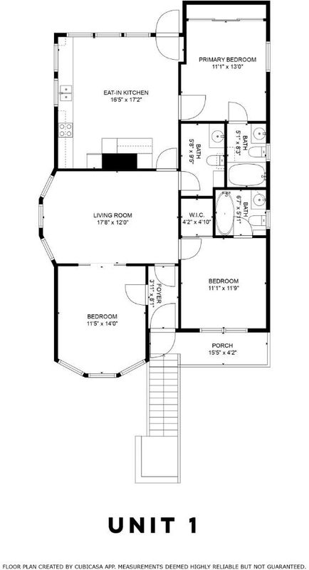
- 5 Bed
- 6 (4/2) Bath
- 8 Park
- 3,273 sqft
- LOS GATOS
-
PRIME LOCATION | TOP LOS GATOS SCHOOLS | Located just blocks from Downtown and zoned for top-rated Louise Van Meter Elementary, Fisher Middle, & Los Gatos HS, this rarely available duplex offers a compelling opportunity. The top unit features 3 beds and 2.5 baths, showcasing vintage Victorian charm with high ceilings, a clawfoot tub, and stained glass details. The lower unit includes 2 beds and 2.5 baths and has been remodeled with vinyl flooring, soft-close kitchen cabinets, stainless steel appliances, & quartz countertops. Each unit offers a spacious layout, dedicated laundry, & access to a large backyard. Additional highlights include 8 parking spaces and a side yard for storage or outdoor use. The property has been impeccably maintained, and the overall condition reflects consistent care & pride of ownership. Ideally situated between Downtown Los Gatos & East Los Gatos, the location offers unmatched convenience, with schools, dining, shopping, & fitness all w/in a 1-mile radius. The duplex's prime corner lot at LG Boulevard and Wheeler provides added ease of access and more flexible street parking for residents & guests. Whether you're seeking owner-occupancy w/ supplemental rental income, multi-generational living, or a prime investment, this opportunity is not to be missed.
- Days on Market
- 73 days
- Current Status
- Active
- Original Price
- $2,298,000
- List Price
- $2,199,000
- On Market Date
- Jul 31, 2025
- Property Type
- Single Family Home
- Area
- 16 - Los Gatos/Monte Sereno
- Zip Code
- 95030
- MLS ID
- ML82016628
- APN
- 532-37-011
- Year Built
- 1899
- Stories in Building
- 2
- Possession
- Unavailable
- Data Source
- MLSL
- Origin MLS System
- MLSListings, Inc.
Los Gatos High School
Public 9-12 Secondary
Students: 2138 Distance: 0.4mi
Louise Van Meter Elementary School
Public K-5 Elementary
Students: 536 Distance: 0.5mi
Fusion Academy Los Gatos
Private 6-12
Students: 55 Distance: 0.6mi
Raymond J. Fisher Middle School
Public 6-8 Middle
Students: 1269 Distance: 0.7mi
St. Mary Elementary School
Private PK-8 Elementary, Religious, Coed
Students: 297 Distance: 0.8mi
Liber Community School
Private PK-12 Preschool Early Childhood Center, Elementary, Middle, High
Students: 30 Distance: 0.8mi
- Bed
- 5
- Bath
- 6 (4/2)
- Showers over Tubs - 2+, Tile, Tubs - 2+
- Parking
- 8
- Common Parking Area, No Garage, On Street, Parking Area, Tandem Parking
- SQ FT
- 3,273
- SQ FT Source
- Unavailable
- Lot SQ FT
- 7,250.0
- Lot Acres
- 0.166437 Acres
- Kitchen
- Dishwasher, Exhaust Fan, Garbage Disposal, Microwave, Oven - Double, Oven - Gas, Refrigerator
- Cooling
- None
- Dining Room
- Breakfast Nook, Dining Area in Living Room, Eat in Kitchen
- Disclosures
- Natural Hazard Disclosure
- Family Room
- Separate Family Room
- Flooring
- Carpet, Laminate
- Foundation
- Concrete Perimeter
- Fire Place
- Free Standing, Living Room
- Heating
- Wall Furnace
- Laundry
- Washer / Dryer, Other
- Architectural Style
- Victorian
- Fee
- Unavailable
MLS and other Information regarding properties for sale as shown in Theo have been obtained from various sources such as sellers, public records, agents and other third parties. This information may relate to the condition of the property, permitted or unpermitted uses, zoning, square footage, lot size/acreage or other matters affecting value or desirability. Unless otherwise indicated in writing, neither brokers, agents nor Theo have verified, or will verify, such information. If any such information is important to buyer in determining whether to buy, the price to pay or intended use of the property, buyer is urged to conduct their own investigation with qualified professionals, satisfy themselves with respect to that information, and to rely solely on the results of that investigation.
School data provided by GreatSchools. School service boundaries are intended to be used as reference only. To verify enrollment eligibility for a property, contact the school directly.